Diesel Generator Set 2D CAD
$0,00
File Format
AutoCAD DWG
Compatible with AutoCAD and other CAD software supporting DWG files.
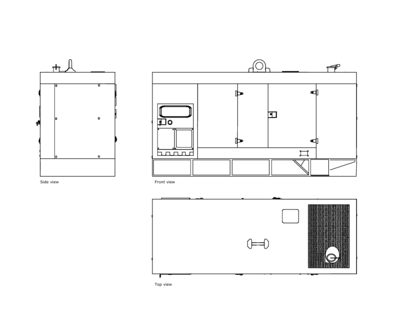
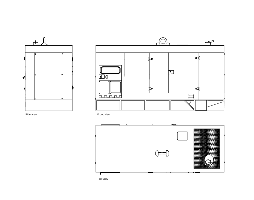
Diesel Generator Set – 2D CAD Drawing Free Download (DWG)
The Diesel Generator Set Drawing is a detailed technical file designed for electrical engineers, MEP consultants, architects, and industrial planners.
This free download CAD file in DWG format includes front view, side view, and top view layouts of a soundproof generator enclosure, making it suitable for installation planning, plant room layouts, and power backup system design.
Drawing Features
High quality 2D diesel generator drawing
Front view with control panel and access doors
Side view showing enclosure structure
Top view with ventilation and exhaust layout
Clean and precise linework
Optimized for electrical and mechanical layouts
Provided in DWG format
Typical Applications
Power plant layout planning
Industrial facility design
Commercial building backup power systems
Hospital and data center generator rooms
MEP coordination drawings
Electrical tender documentation
Benefits of Using This CAD File
Saves time during electrical layout preparation
Ensures accurate space allocation for generator installation
Supports ventilation and maintenance clearance planning
Ready to insert into project drawings
Search more related products on Shop section to download for free.
| CAD Software Preference |
AutoCAD |
|---|---|
| Drafting & Modeling |
2D Drafting |
You must be logged in to post a review.

Reviews
There are no reviews yet.